Free account required
48
Free account required
$1,499,000 Sale
Listed 15 hours ago
156 Brookdale Avenue
· 2
· 2
· 1
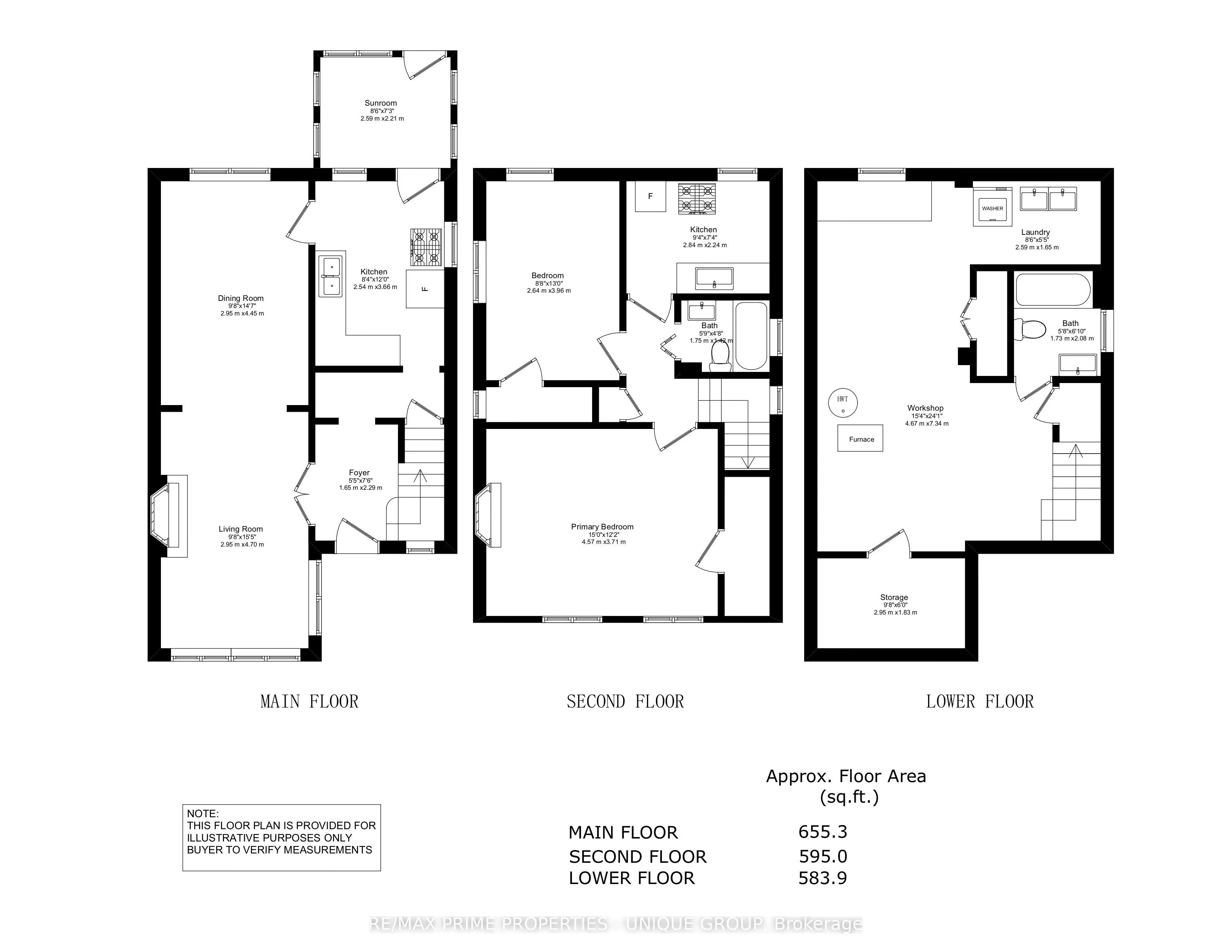
· 1100-1500
Listing History
Buy/Sell/Terminated/Expired listing history for 156 Brookdale Avenue
Key Facts
Key facts for 156 Brookdale Avenue
Property Type
House, 2-Storey
Parking
Detached 1 garage, 1 parking
MLS #
C12484105
Size
1100-1500 sqft
Basement
Unfinished
Listed on
2025-10-27
Lot size
25 x 111.0
Tax
$7,910 /yr
Days on Market
9
Approximate Age
-
Maintenance Fee
-
Description
Exceptional opportunity in one of Toronto's most desirable neighbourhoods, just steps from Yonge and Lawrence. Situated on a quiet, tree-lined street, this two-storey home on 25 x 112 foot lot with mutual drive and detached garage offers the perfect canvas for those with vision. Whether you're dream...ing of a stylish renovation or planning to construct a brand-new residence, or for investors, build a new 4-plex on this property, there are many possibilities for this home. Also, the existing detached garage, could be transformed into a stunning two-storey secondary dwelling. Ideal for extended family or rental income, a garden suite adds both value and versatility to your investment. The location is simply outstanding. A short stroll brings you to the Lawrence subway station, making commuting throughout the city effortless. The vibrant Yonge Street corridor is right at your doorstep, offering an exciting mix of boutique shopping, gourmet dining, cozy cafes, and everyday conveniences. From weekend brunch spots to late-night takeout options, the neighbourhood buzzes with urban energy while maintaining a welcoming community feel. Families will appreciate access to highly regarded public schools including John Wanless Jr P.S., Blessed Sacrament Catholic School and Lawrence Park Collegiate Institute, both known for their strong academic reputations. In addition, some of Toronto's finest private schools are just minutes away such as Havergal College, St. Clement's, Crescent and Toronto French School, placing top-tier education within easy reach. Whether you envision a modern transformation of the current home or a complete redesign paired with a luxurious garden suite, or you're an investor looking to build a 4-plex, the potential here is truly remarkable. This is an invitation to create a residence that reflects your lifestyle and future plans in a coveted neighbourhood where opportunity rarely knocks twice. Unlock the endless possibilities in this exceptional location.
Similar Properties (No results)
Courtesy of: RE/MAX PRIME PROPERTIES - UNIQUE GROUP